As Oy Helsingin Fortuna, Juno ja Minerva
julkisivua Petter Wetterin tielle
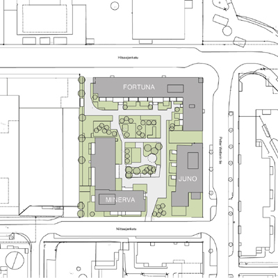
asemapiirros
julkisivu Hitsaajankadulle
leikkaus
julkisivu pihalle

144 omistusasuntoa 144 owner occupied apartments
Rakennuttaja / Developer: Skanska Kodit Oy
Sijainti / Location: Hitsaajankatu 13, Petter Wetterintie 1, Niittaajankatu 12, Helsinki
Fortuna ja Juno valmistuneet 2007-2008. /
Fortuna and Juno completed 2007-2008.

Herttoniemessä sijaitsevalle vanhalle teollisuustontille tehty kaavamuutos ja toteutussuunnittelu kerrostalokortteliksi. Kortteli käsittää kolme asuinkerrostaloa sekä näitä palvelevan maanalaisen 127 ap:n autohallin. Asuntoihin suunniteltiin vaihtoehtoisia asuntotyyppejä, joissa varioitiin erityisesti keittiöratkaisua.

Re-use of former factory area as new housing. The project consists of three apartment houses and underground parking facilities.

valokuvat/ photos: Arkkitehtitoimisto Ulpu Tiuri Oy