Kilterinrinne 4
julkisivu torille
asemapiirros
porrashuone
asunto
julkisivu pihalle
parvekkeita
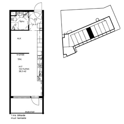
asuntopohja
2.krs

Rakennuttaja / Client: Alkuasunnot Oy,
Nuorisoasuntoliitto NAL
Sijainti / Location: Kilterinrinne 4, Vantaa
46 vuokra-asuntoa / 46 rental dwellings
Valmistunut 2009 / Completed 2009

Rakennus reunustaa uuden Kilterinmäen alueen toriaukiota, jonne asuntojen parvekkeet avautuvat. Julkisivujen rikas väritys jatkuu valoisassa porrashuoneessa. Asuntojen tilasuunnittelussa oli tavoitteena luoda avaruutta ja elämisen laatua pieniin asuntoihin.

Asunnot on tarkoitettu ensiasunnoiksi kotoa muuttaville nuorille. Pienimmät asunnot voidaan myöhemmin yhdistää parittain. Asukkaiden käytössä on kerhotila aukion varrella ja muita yhteistiloja.

The building faces a small square in the new Kilterinmäki area. The rich colouring of the facades continues in common access areas inside the house. A living space of high quality is created in a small single household apartment.

The owner provides affordable rental housing for young adults. Small apartments can be combined to larger ones during the life span of the building. A common “living room”, laundry and sauna are at the disposal of the tenants.


valokuvat/ photos: Arkkitehtitoimisto Tiuri & Lommi Oy